Классический и традиционный. Консервативный, но надежный. Дорогой, но долговечный. Трудоемкий, но прочный. Это про бетонный бассейн. Причем, консервативный в данном случае не значит закостенелый или непрогрессивный, наука и техника не стоят на месте. Строительство бетонных бассейнов сегодня – это активное применение новых технологий, современных материалов, передовых методов. И не стоит верить тем Интернет-ресурсам, на которых размещаются фото-страшилки, изображающие, во что могут превратиться со временем бетонные бассейны (растущие со дна деревья, растрескавшиеся и покрытые тиной стенки чаши и т.д.). С таким же успехом можно публиковать фото жилищ алкоголиков, либо наркопритонов. Да даже картинку кухни нерадивой хозяйки! Потому что – что? Правильно! – за домом, за хозяйством, за бассейном необходимо следить, ухаживать, холить и лелеять. Иначе все пойдет прахом. Это же так очевидно!
Во время возведения современных бассейнов едва ли не самый главный момент – правильный подбор или строительство чаши. Сегодня имеется несколько различных материалов, из которых можно выполнить чашу, но классикой считается все-таки бетонный бассейн. чаша бассейна – это простор фантазии и желаний, она может быть любых форм и размеров, все зависит от требований заказчика или архитектора-дизайнера. Бетонная конструкция бассейна одинаково хорошо возводится как при строительстве нового дома, так и при встраивании в уже существующее помещение. Но, конечно, в идеале – если проект бассейна создается одновременно с проектом дома.
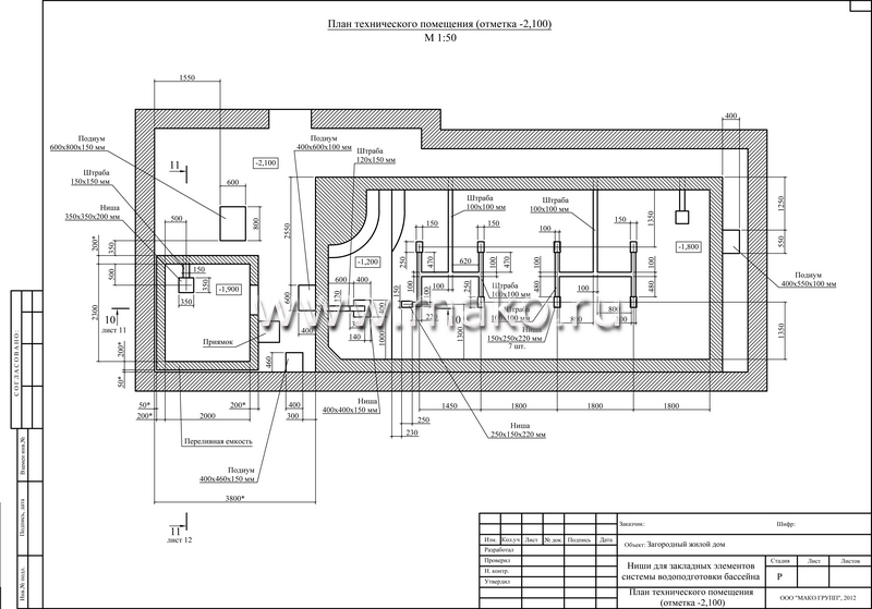
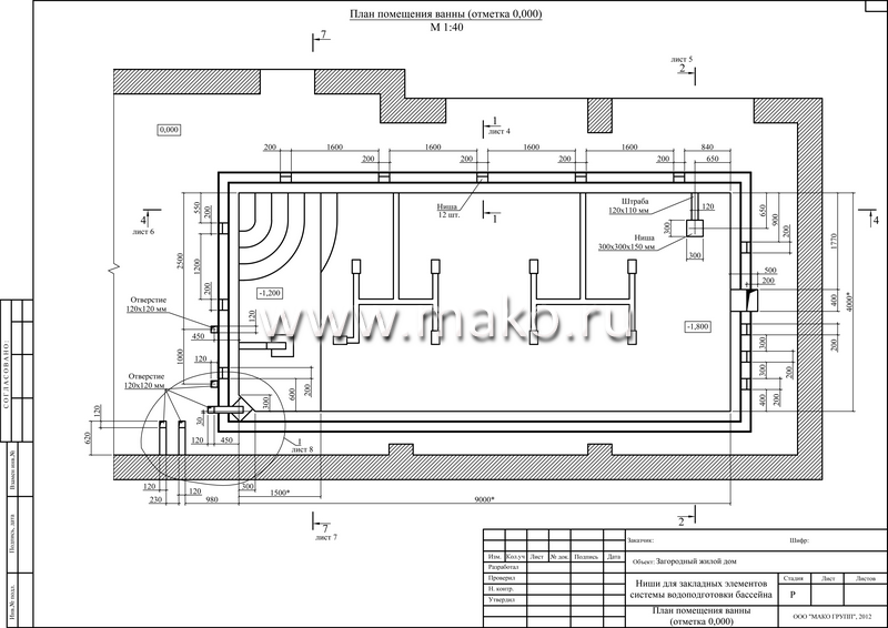
Проекты бетонных бассейнов включают в себя проектирование формы чаши, подбор необходимого оборудования для бассейна, вид отделки, подготовку необходимых чертежей и т.д. Устройство бетонного бассейна сложно и трудоемко, поэтому и проектирование, и непосредственно строительство бассейнов требуют профессиональных знаний и проектировщиков, и монтажников. Именно поэтому проектные работы занимают особое место в ходе всего строительства. Грамотный и четкий проект, разработанный с учетом европейских и отечественных стандартов – это первый шаг на пути получения отличного бассейна с чистой водой. Специал
Строительство бетонной чаши бассейна – крайне важный этап. Заливка бетонной смесью дна и стенок чаши должна происходить, по возможности, непрерывно. При большом промежутке времени между заливкой дна и заливкой стенок применяют расширительный шнур. Специалисты говорят, что на нем экономить не стоит, поскольку его свойства помогают избежать «холодного шва» между слоями заливки бетонной смеси. Чаше бетонного бассейна необходимо «выстояться» не менее 28 дней. Заказчик должен это знать и не требовать ускорения темпов строительства. В противном случае он рискует получить некачественный бассейн.
Специалисты говорят, что отделка бетонного бассейна – один из приятных и интересных этапов строительства. Именно после него водоем приобретает презентабельный и комфортный вид. Для бетонных бассейнов используют такие виды отделки, как отделка керамической плиткой, стеклянной мозаикой, армированной пленкой ПВХ. Закладные элементы, которые подбираются под пленку или под плитку (мозаику), зависят от выбора заказчиком облицовочного материала.
В бетонные бассейны можно установить дополнительное оборудование, которое сделает Ваш бассейн еще более привлекательным, комфортным и полезным. Это могут быть гидро- и аэромассажные установки, противоток, водопады, горки и т.д.
Наша компания разработает для Вас проект бетонного бассейна любой сложности, проведет полный комплекс работ по отделке и установке оборудования. Наши мастера используют различные виды облицовочных материалов, все зависит от Ваших пожеланий и финансовых возможностей. Выполняем художественные панно на заказ.





















































